Etusivu » Inspiroidu » Rakentajatarinoita » Vaaleanharmaa Fregatti metsän laidassa
TEKSTI Jutta Ylä-Mononen
KUVAT Jaanis Kerkis
Vaaleanharmaa Fregatti metsän laidassa
Sisustussuunnittelija ja somevaikuttaja Anne Melender suunnitteli minimalistisen talon, joka henkii modernin puutalon lämpöä. Itse rakennettu talo Turun lähistöllä on Annen ja Tapion toiveiden täyttymys.
Anne Melender asui miehensä Tapion kanssa omakotitalossa Hirvensalossa. Talo ei ollut Annen ja Tapion rakentama, ja sitä oli remontoitu ja muokattu vuosien varrella enemmän omiin tarpeisiin ja tyyliin sopivaksi. Lopulta heräsi ajatus suunnitella ja rakentaa talo.
– Suunnittelun ammattilaisena minulla oli kunnianhimoisena ajatuksena suunnitella meille talo, ja Tapsa halusi kokea millaista on rakentaa. Kun myimme Hirvensalon talon muutimme Turun keskustaan vuokralle kerrostaloon. Asuimme kerrostalossa koko suunnittelu- ja rakennusajan, reilut kolme vuotta, ja huomasimme, ettei se ollut meille sopiva asumismuoto. Omakotitalossa on tietynlainen vapaus. Koti on meidän harrastus- ja rentoutumispaikka. Tykkäämme molemmat kotona puuhailusta, kertoo Anne.
PUUTALON LÄMMIN HENKI
– Kun aloimme miettimään taloa, piirsin ensin loft-tyyppisen talon, johon sijoitettaisiin toiseen kerrokseen makuuhuone ja kylpyhuone. Mutta pian tajusin, että siskoni Suvi Melender-Lågland on ollut mukana suunnittelemassa Kannustalolle Fregatti-
taloa, joka on nyt yhdistetty Lato-mallistoon. Kannustalo oli meille itsestäänselvä valinta, emmekä edes miettineet mitään muuta talotehdasta.
Anne ja Tapio halusivat valmiin talomalliston taloja modernimman version ja kokonaisuudesta täysin omien tarpeidensa mukaisen. He eivät halunneet valmista pohjaa, vaan Anne ryhtyi suunnittelemaan sitä. Hän tiesi, että yhteistyössä Kannustalon kanssa se on mahdollista. Talossa on myös erikoistoimituksena rimalomalaudoitus, joka on nyt poistunut valikoimasta.

– Emme halunneet mustaa emmekä valkoista taloa. Päätimme, että talosta tulee vaaleanharmaa. Jatkoimme vaaleanharmaata linjaa myös talossa sisällä, keittiökalusteet ovat samaa sävyä kuin ulkoseinät. Emme ole kivitaloihmisiä, vaan haaveena oli puutalo. Tykkäämme enemmän maanläheisestä rennosta tyylistä kuin luksuksesta. Kodikas talo, jossa on ripaus perinteisiä piirteitä, on meidän tyyliimme sopiva. Puutalon lämmin henki, tietynlainen vaatimattomuus ja hiljainen luksus miellyttää meitä molempia. Tämä talomalli sopii siihen täydellisesti. Talo on sisältä minimalistinen ja yksinkertainen, ei niinkään trendikäs.
LISTA TOIVEISTA
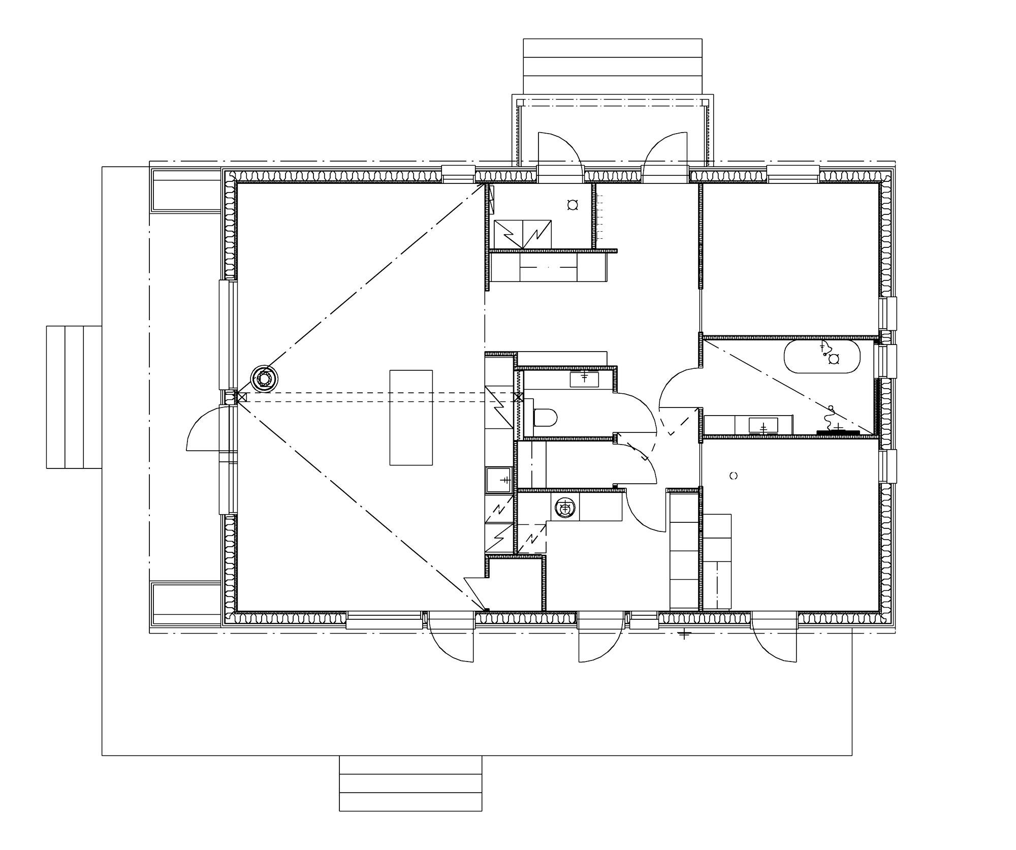
Annella ja Tapiolla oli pitkä lista toiveita, mitä kaikkea he halusivat suunnitteilla olevaan taloonsa. He eivät olleet vielä siinä vaiheessa etsineet tonttia. Anne keksi lopulta, kuinka kaikki saadaan toteutettua kompaktiin pohjaratkaisuun, 118,5 asuinneliöön. Hän piirsi wc:n, vaatehuoneen ja kodinhoitohuoneen keskelle taloa blokiksi, makuuhuoneet toiseen päätyyn ja oleskelualueen omaan päätyynsä.
– Pohjaratkaisu on ollut tosi toimiva. Vaikka meitä on vaan kahden hengen perhe, tämä rauhoittaa tilat hyvin. Teen paljon töitä kotona. Illalla on ihana vetäytyä eri päähän taloa kun missä olemme viettäneet aktiivisen päivän. Tämä pohjaratkaisu on yksi parhaista asioista tässä talossa. Tämä on täysin oma suunnittelemani, ja olen siitä tosi ylpeä. Kun saimme kaikki haluamamme toiveet täyttymään pohjaratkaisun osalta, pyysimme Kannustalolta tarjouksen. Emme vertailleet hintoja muiden talotehtaiden kanssa, koska olimme päättäneet toteuttaa projektin Kannustalon kanssa. Halusimme talotehtaan, jonka laatuun voimme luottaa. Ajattelimme myös, että jos joskus rakennamme uuden talon ja laitamme tämän myyntiin, on se helppo myydä. Kannustalon laatua arvostetaan.
SUUNNITELMIIN SOPIVA TONTTI
Kun pohja oli suunniteltu, Annen ja Tapion piti vielä löytää siihen sopiva tontti. He pitivät ilmansuuntia tärkeinä. Pienen etsimisen jälkeen he löysivät metsätontin, joka oli kasvanut ryteiköksi, mutta oli täydellinen heidän tarpeisiinsa. Alue oli jo suurimmaksi osaksi rakennettu, ja Anne ja Tapio näkivät millaiseksi se muodostuu. Mitään yllätyksiä ympäristössä ei ollut odotettavissa.
– Emme halunneet peltotonttia, missä ei ole yhtään puuta. Meille luonto ja metsä on tosi tärkeitä. Tämä oli viimeisiä rakentamattomia tontteja tällä alueella. Jo maatöitä tehdessä pidimme tärkeänä, että olohuoneen isosta ikkunasta näkyvä luonto ja upeat katajat voitiin säilyttää ja rakentaa varvikkoon asti ulottuva terassi. Vaikka talon pitkillä sivuilla tulee olemaan asuinalueelle tyypillisiä puutarhoja ja kivetysalueita, niin tonttien keskelle jäi pala lähes koskematonta luontoa. Olemme viihtyneet täällä tosi hyvin. Pääsemme moottoritietä vartissa Turun keskustaan.
PALJON TAUSTATYÖTÄ
Ennen kun elementtitoimitus tuli tontille marraskuussa 2021 Annella ja Tapiolla oli paljon tekemistä maatöissä ja tontin raivaamisessa jo edeltävänä kesänä. He miettivät tarkasti talon paikkaa ja sen korkoa. Kannustalon saatua valmiiksi oman osuutensa pariskunta pääsi itse jatkamaan rakentamista. Kaikki puut mitä tontilta oli kaadettu pilkottiin perheen voimin klapeiksi, ja Tapio rakensi isänsä kanssa myös puuvajan.

Koko talossa on itse valettu betonilattia. Eteisessä on Unique Homen malliston tammiviilutettu, Rubio Monocoat -öljyllä käsitelty kaapisto. Matto Tikau, Domino-penkki Hakola. Messinkiset Passepartout-kattovalaisimet &Tradition. Avoin oleskelutila pysyy päivälläkin viileänä, kun iso ikkuna aukeaa länteen. Takka Contura. Anne nauttii kotona puuhailusta. Kauniisti sisustettu koti on myös paras paikka rentoutua.
– Teimme paljon taustatyötä, mikä on ollut mahtavaa, että moni asia oli valmiina siinä vaiheessa, kun muutimme tänne. Tapsan isä myös suunnitteli ja teki talon tyyliin sopivan puutarhavajan. Ostimme Kannustalolta autotallin, joka on vasta ulkopuolelta valmis. Etupiha ja autotalli ovat seuraavia projektejamme. Kaikkea ei voi tehdä yhtäaikaa. Tapsan vanhemmat asuvat lähellä, heistä on ollut valtava apu rakentamisessa. He ovat olleet kantava voima projektissa, kiittelee Anne.

Unique Homen keittiökalusteiden sävy on sama kuin talon ulkoväri, RAL 7044. Keittiössä on Dekton tasot, hylly ja välitila, jotka on helppo pitää puhtaana. Ruokapöytä on yhdistetty Muuton erillisestä pöytälevystä ja jaloista. Seinällä Stolabin tamminen Icon-hylly. Kattovalaisin Audon Dancing Pendant. Tuolit Fredericia J39 Mogensen, päissä Carl Hansenin suunnittelemat Wishbone-tuolit.
VALMIIT SUUNNITELMAT HYVISSÄ AJOIN
Rakentamisessa meni reilu kaksi vuotta, ja Anne ja Tapio pääsivät muuttamaan uuteen kotiin heinäkuussa 2024.
– Tärkeintä on hyvä ja ennakoiva suunnittelu. Siinä vaiheessa, kun rakentaminen alkaa, kannattaa mahdollisimman moni päätös olla tehty, pistorasioista, ovenkahvoista ja värisävyistä lähtien. Kaikki sellaisetkin asiat, joista ajattelee ettei niitä tarvita vielä pitkään aikaan. Kun on keskellä prosessia, päätöksiä täytyy edelleen tehdä paljon. Väsyneenä sitä vaan ottaa jonkun, kun ei jaksa miettiä tai tulee kiire. Tilasuunnittelu sekä kaikki isot ja kalliit asiat täytyy olla suunniteltu valmiiksi.
– Mietin kodin sisustusta jo siinä vaiheessa, kun suunnittelin talon pohjaa. Piirsin silloin kaikkien kalusteiden paikat oikeassa mittakaavassa. Sisustussuunnittelijan työssä olen nähnyt usein, kuinka ihmiset suunnittelevat talon, mutta eivät mieti ollenkaan mihin laittavat esimerkiksi sohvan. Vasta kun muutetaan sisään aletaan miettiä, mihin ja miten päin sohva sijoitetaan. Olohuoneeseen ei ehkä ole suunniteltu yhtään ehjää seinää. Kaikkien huonekalujen paikat kannattaa miettiä etukäteen. Ei tarvitse tietää, mikä sohva tai ruokapöytä hankitaan, mutta minkä kokoinen ja mihin se halutaan sijoittaa. Meillä oli jo aika kivoja kalusteita ennestään, emme halunneet uusia kaikkea. Tiesimme pitkään, että rakennamme ja ostimme tiettyjä kalusteita, kun ne tulivat edullisesti vastaan. Rakentamisen aikana kannattaa hyödyntää tarjouksia. Sen vuoksi on hyvä, että jonkinlainen sisustussuunnitelma on valmiina, Anne kiteyttää.
Ruokapöytä on yhdistetty Muuton erillisestä pöytälevystä ja jaloista. Seinällä on Stolabin tamminen Icon-hylly. Valaisin Audon Dancing Pendant. Tuolit Fredericia J39 Mogensen, päissä on Francklysta löydetyt Ilse Crawfordin malliston sävyiset Carl Hansenin suunnittelemat Wishbone-tuolit. Takka Contura.
Avoimessa tilassa on hyödynnetty talon koko harjakorkeus. Olohuoneseen hankittiin Roots Livingin Pile Wool -villamatto. Hakolan Puzzle-istuinmoduuli on verhoiltu vakosamettikankaalla, väri vaaleansininen 12. Tanskalainen Söderlundin klassikkosohva on kulkenut pitkään mukana ja on nyt verhoiltu Annalan Anja-villakankaalla. Edessä Made by Choicen Kolho-tuoli. Sohvapöytänä FontanaArten Tavolo con Ruote. Seinillä Annen isän Juhani Melenderin töitä.

Kodinhoitohuoneen kaapisto on Stalan Seven-sarjaa. Messingin väriset vetimet on tilattu Australiasta. Lattia on laatoitettu Pukkilan pilkullisilla laatoilla.
Makuuhuoneen seinä maalattiin Teknoksen Lagom T1659 -sävyllä. Makuuhuoneeseen tulee valo kahdesta suunnasta, idästä ja etelästä. Sänky ja sängynpääty Matri. Lukuvalot Artemiden Tolomeo ja sininen &Traditionin Flowerpot, väri Swim Blue.

Anne huomioi talon pohjaa suunnitellessa:
- Tärkeä lähtökohta suunnittelussa oli ilmansuunnat. Anne mietti jokaisen huoneen, kuinka valo kulkee päivän aikana.
- Oleskelutilan iso ikkuna haluttiin länteen kohti ilta-aurinkoa, ettei huone kuumene kesällä liikaa.
- Olohuoneen ikkunasta näkymä on sellainen, ettei tarvita verhoja.
- Kylpyhuoneeseen toivottiin luonnon valoa aamulla, kylpyhuoneen ikkuna aukeaa itään.
- Eteiseen sisään astuttaessa aukeaa suora, pitkä näkymä läpi talon ulos.
- Sisäänkäynnistä haluttiin kaunis näkymä jokaiseen suuntaan.
- Toiveena oli, ettei makuuhuoneisiin ole käyntiä olohuoneesta, vaan ne on rauhoitettu talon toiseen päätyyn.
- Olohuoneen sohvalle mietittiin paikka ehjää seinää vasten.
- Terassin ruokailuryhmä sijoitettiin niin, ettei se näy olohuoneen ja keittiön ikkunoista sisään.
- Keittiön säilytystiloja täydentämään piirrettiin ruokakomero.
- Pihalle päätettiin rakentaa myöhemmin pihasauna, minkä vuoksi taloon sisälle ei suunniteltu saunaa.
Talon päätyyn jätettiin pieni metsäalue, joka suojaa näkymää naapuriin päin. L-muotoinen terassi rakennettiin talon etelän ja lännen puoleisille sivuille. Talon pitkältä sivulta on kolme uloskäyntiä: keittiöstä, kodinhoitohuoneesta ja makuuhuoneesta. Ulkoverhouksessa käytetty rimalomalaudoitus on poistunut tuotevalikoimasta.
