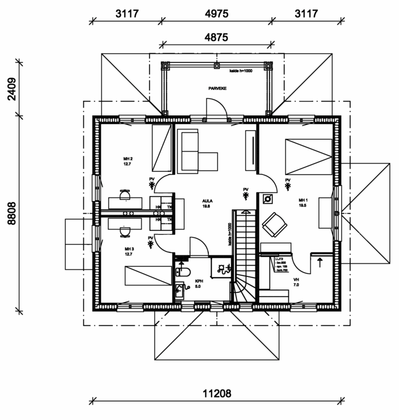
Talomalli: 2-kerroksinen Aurora / muunnos
Huoneistoala: 88,0 + 80,0 = 168,0 m2
Kerrosala: 105,0 + 95,0 = 200,0 m2
Huonekorkeus: 2,8 m
Toimitustapa: Muuttovalmis-toimitus
Esittelyvaihe: Muuttovalmis
Lämmitys: Vesikiertoinen lattialämmitys, maalämpöpumppu.
Koneellinen ilmanvaihto lämmöntalteenotolla.
Tutustu kotiin virtuaalisesti ja kokeile eri sisä- ja ulkovärejä.
Kuvia on käsitelty tai tehty digitaalisesti.
