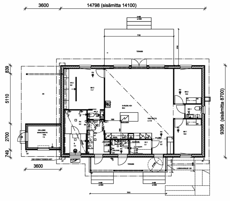
Talomalli: 1-kerroksinen Harmaja / muunnos
Huoneistoala: 119,0 m2
Kerrosala: 149,0 m2
Huonekorkeus: 2,8 m
Toimitustapa: Muuttovalmis-toimitus
Esittelyvaihe: Muuttovalmis
Lämmitys: Vesikiertoinen lattialämmitys, ilma-vesilämpöpumppu.
Koneellinen ilmanvaihto lämmöntalteenotolla.
Tutustu kotiin virtuaalisesti ja kokeile eri sisä- ja ulkovärejä.
Kuvia on käsitelty tai tehty digitaalisesti.

