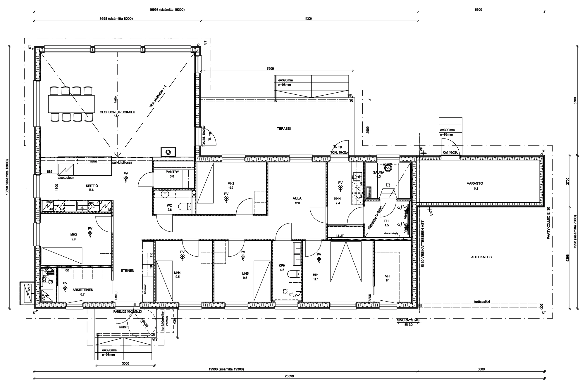
Talomalli: Lato 138 / muunnos
Huoneistoala: 186,0 m2
Kerrosala: 227,0 m2
Huonekorkeus: 2,6 m
Toimitustapa: Sisusta itse-toimitus
Esittelyvaihe: Levyvalmis
Lämmitys: Vesikiertoinen lattialämmitys, ilma-vesilämpöpumppu.
Koneellinen ilmanvaihto lämmöntalteenotolla.
Tutustu talomalliiin virtuaalisesti ja muuta sisä- ja ulkovärityksiä tästä
Kuvia on käsitelty tai tehty digitaalisesti.
