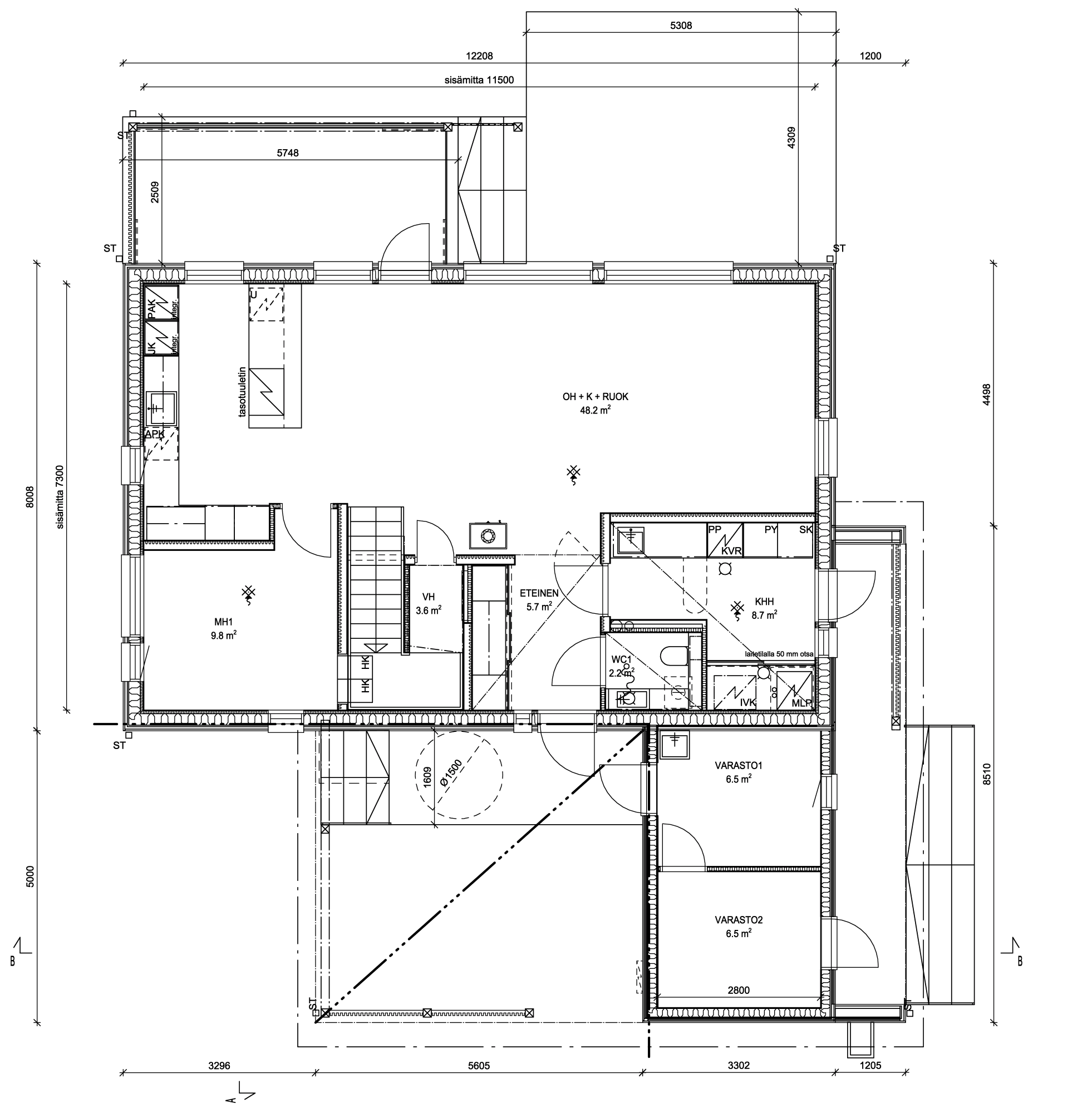
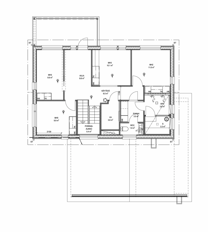
Talomalli: 2-kerroksinen Harmaja / asiakkaan oma suunnitelma
Huoneistoala: 80,0 + 84,0 = 164,5 m2
Kerrosala: 115,0 + 92,0 = 207,0 m2
Huonekorkeus: 2,8 m
Toimitustapa: Sisusta itse-toimitus
Esittelyvaihe: Levyvalmis
Lämmitys: Vesikiertoinen lattialämmitys, maalämpöpumppu.
Koneellinen ilmanvaihto lämmöntalteenotolla.
Tutustu kotiin virtuaalisesti ja kokeile eri sisä- ja ulkovärejä.
Kuvia on käsitelty tai tehty digitaalisesti.
