Harmaja-esittely Helsingissä
klo 15 - 18
00430 Helsinki
Opastus paikalle.
Tervetuloa!
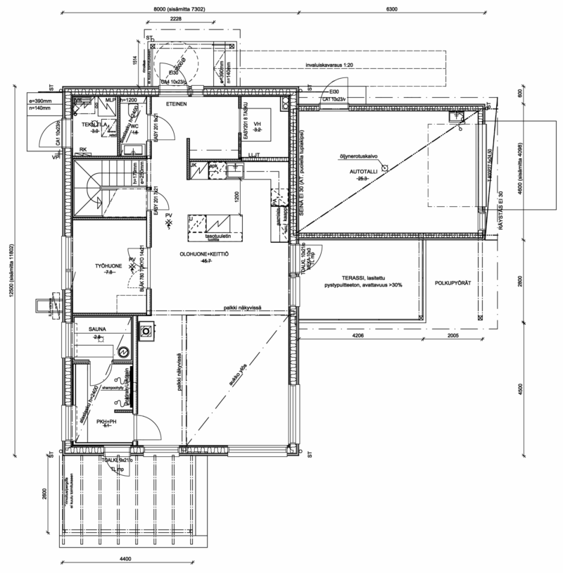
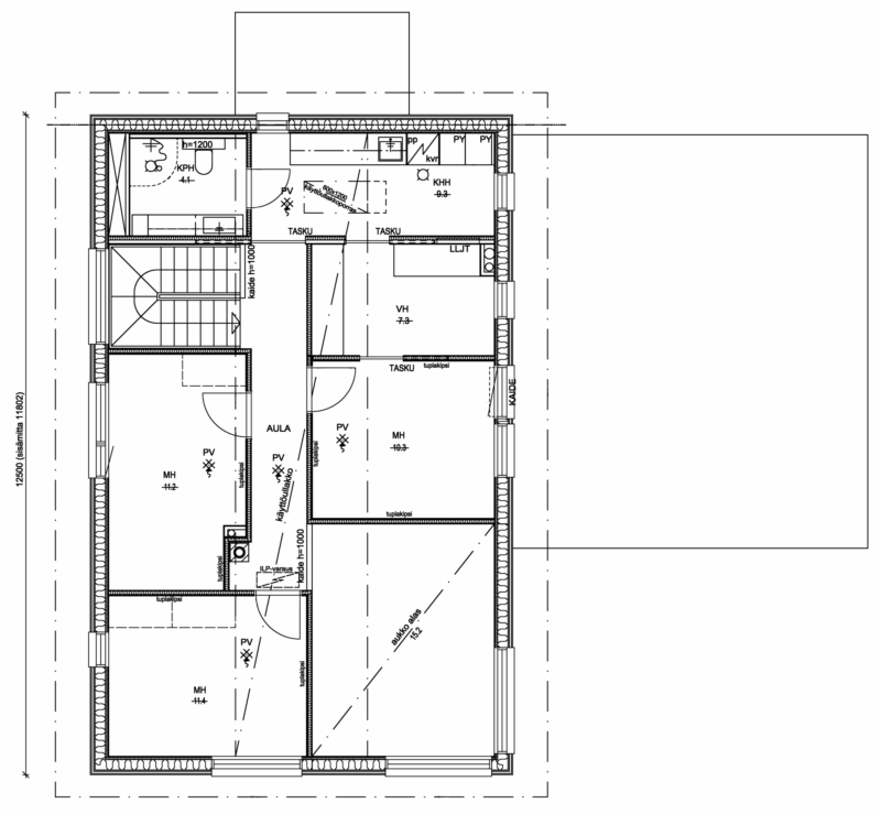
Talomalli: 2-kerroksinen Harmaja / asiakkaan oma suunnitelma
Huoneistoala: 76,0 + 71,0 = 147,0 m2
Kerrosala: 129,0 + 80,0 = 209,0 m2
Huonekorkeus: 2,6 m
Toimitustapa: Muuttovalmis-toimitus
Esittelyvaihe: Muuttovalmis
Lämmitys: Vesikiertoinen lattialämmitys, maalämpöpumppu.
Koneellinen ilmanvaihto lämmöntalteenotolla.
Tutustu kotiin virtuaalisesti ja kokeile eri sisä- ja ulkovärejä.
Kuvia on käsitelty tai tehty digitaalisesti.
