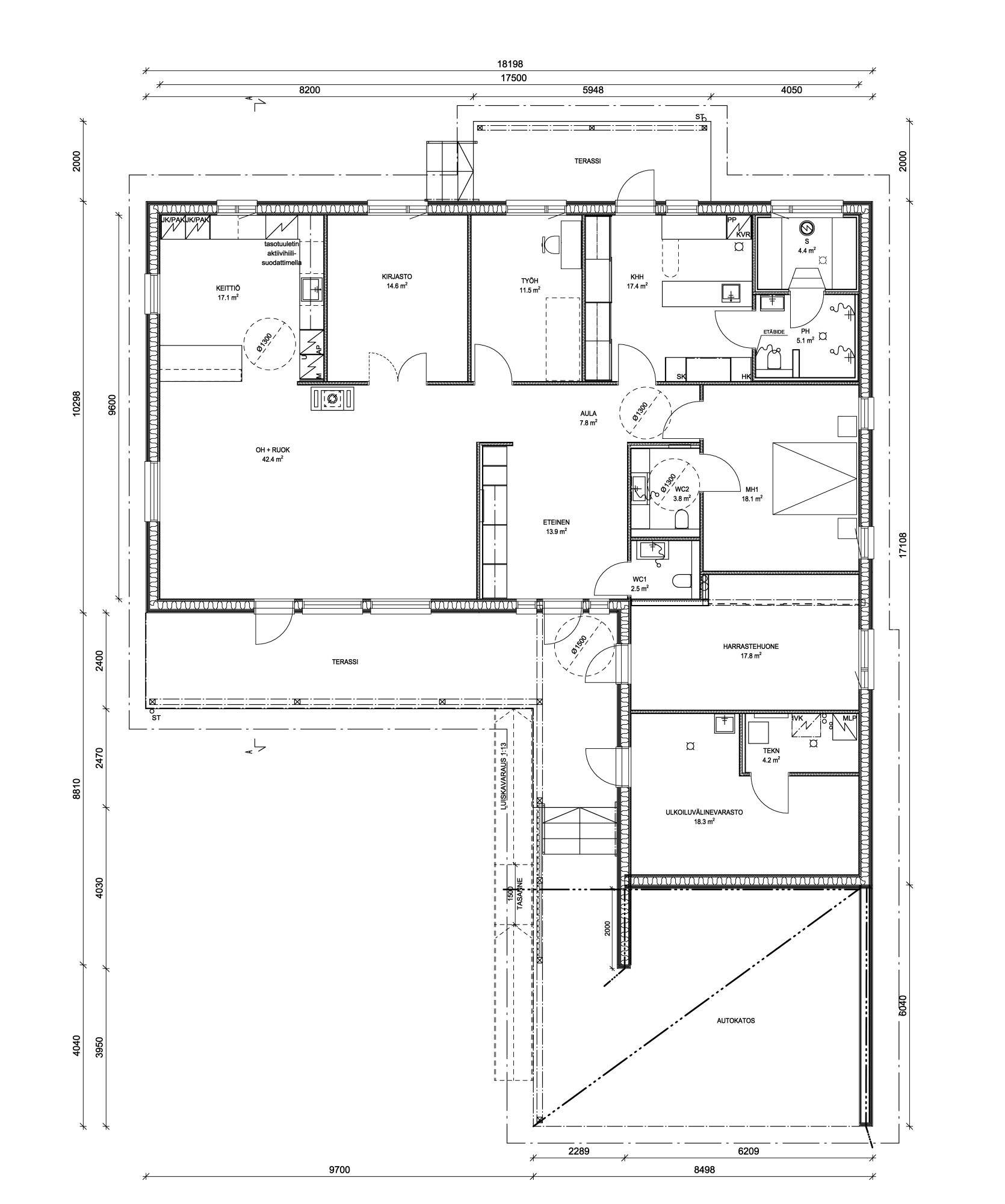
Talomalli: LATO 139 / muunnos
Huoneistoala: 165,0 m2
Kerrosala: 232,0 m2
Huonekorkeus: 2,8 m
Toimitustapa: Muuttovalmis-toimitus
Esittelyvaihe: Muuttovalmis
Lämmitys: Vesikiertoinen lattialämmitys, maalämpöpumppu.
Koneellinen ilmanvaihto lämmöntalteenotolla.
Tutustu kotiin virtuaalisesti ja kokeile eri sisä- ja ulkovärejä.
Kuvia on käsitelty tai tehty digitaalisesti.
